alsocan architects
alsocan architects




also@alsocan.com.au      0413 332 874

  • images of charcoal gable roofed ancillary dwelling granny flat over carport on street boundary
    Ancillary dwelling over carport on street boundary in Invermay Tasmania
  • images of barn conversion and interiors with Japanese shoji screens and central fireplace
    Airbnb barn conversion with Japanese style in Hadspen, Tasmania
  • renders of federation red brick house with timber garage and outdoor room addition
    Federation house alterations in Invermay, Launceston
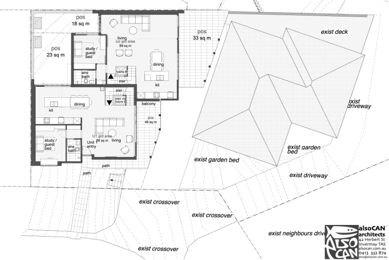
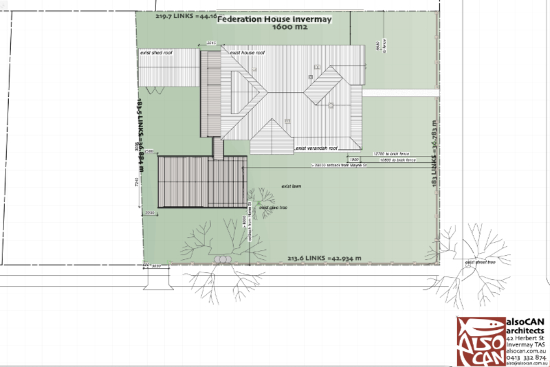
  • site plan of federation red brick house with timber garage and outdoor room addition
    Federation house alterations in Invermay, Launceston
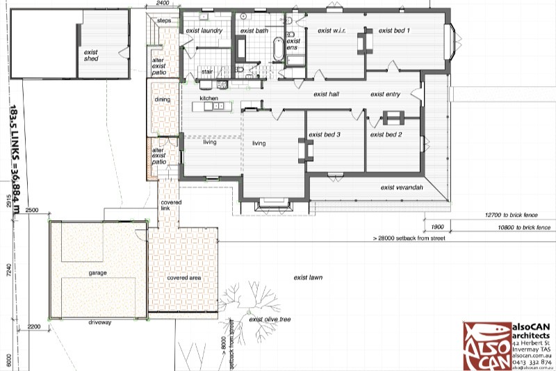
  • ground floor plan of federation red brick house with timber garage and outdoor room addition
    Rooms combined into a large living room, new outdoor room facing garden
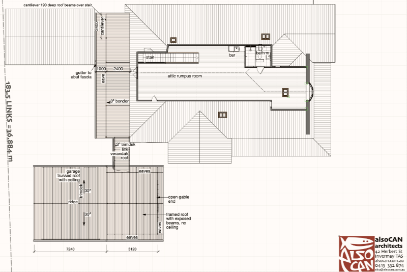
  • first floor plan of federation red brick house with timber garage and outdoor room addition
    Added stair, bathroom and bar to attic rumpus room
  • site plan drawing on street bend looking down on roofs
    Plans for developing a steep site in Launceston, Tasmania
  • ground floor plan drawings showing an existing house kitchen and bathroom renovations and garages for two units with laundries and entry stairs
    Plans for 2 houses with garages embedded in the steep slope
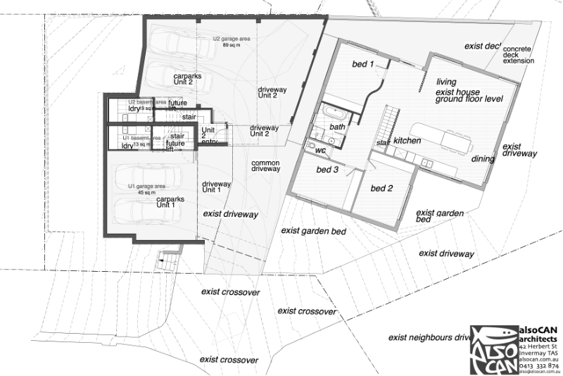
  • first floor plan drawings showing roof of existing house and living areas of two units
    Plans for 2 houses living areas with views over the existing house roof
  • second floor plan drawings showing bedroom areas of two units and existing house roof
    Plans for 2 houses bedrooms and bathrooms
  • roof plan drawings showing two units under one roof and existing house roof
    Plans for 2 houses designed to look like one large house
  • plan drawing of large holiday house with boat store
    Wheelchair accessible holiday house plans in Bicheno, Tasmania
  • existing house plan
    The original concrete block 1930s cottage retained in the middle
  • line drawing perspectives of large holiday house with multiple bays
    Extending at both ends, a bedroom wing and dining wing
  • existing house plan
    The original concrete block 1930s cottage retained in the middle

on the drawing board

alsoCAN architects are now well established in Tasmania, where Dave is Associate Professor at UTAS. We also have projects on the drawing board in Melbourne.

Sheds are a thing in Launceston. Our shed renovations at 42 Herbert St, Invermay have started. We are working on details to retain the beautiful Tasmanian timbers inside, insulate & clad in Formflow.

We are also working on extensions to farmhouses in Riverside & Longford. Our clients sold their bushblock in Richmond & bought in Flowerpot instead, so we will begin sketches on that soon.

The Longford additions, our sheds & an addition in Devonport are all being designed for accessibility; for aging gracefully at home.

In Melbourne, we have an apartment design in South Yarra, a guest suite conversion in Northcote and townhouses in Collingwood.

Our profile on Houzz has been good in exposing us to homeowners looking to renovate. We have a couple of clients who found us through Houzz that we are designing home additions for now.